Châteauguay J6J3P6
Maison de plain-pied | MLS: 27119749
Bienvenue dans cette charmante propriété, parfaite pour toutes les familles à la recherche d'un espace de vie confortable et polyvalent. Offrant deux chambres à l'étage ainsi qu'une chambre supplémentaire au sous-sol entièrement aménagé, cette maison propose à la fois fonctionnalité et flexibilité pour répondre à vos besoins. La lumineuse et accueillante véranda constitue un atout remarquable. Située sur un terrain de belle dimension, elle offre amplement d'espace extérieur pour le jardinage, les loisirs ou de futurs projets. Cette propriété allie praticité et espaces chaleureux, le tout dans un environnement paisible et recherché.
Inclus : Électroménager, revêtements de fenêtres, luminaires et cabanon
Exclus : Meubles et effets personnels
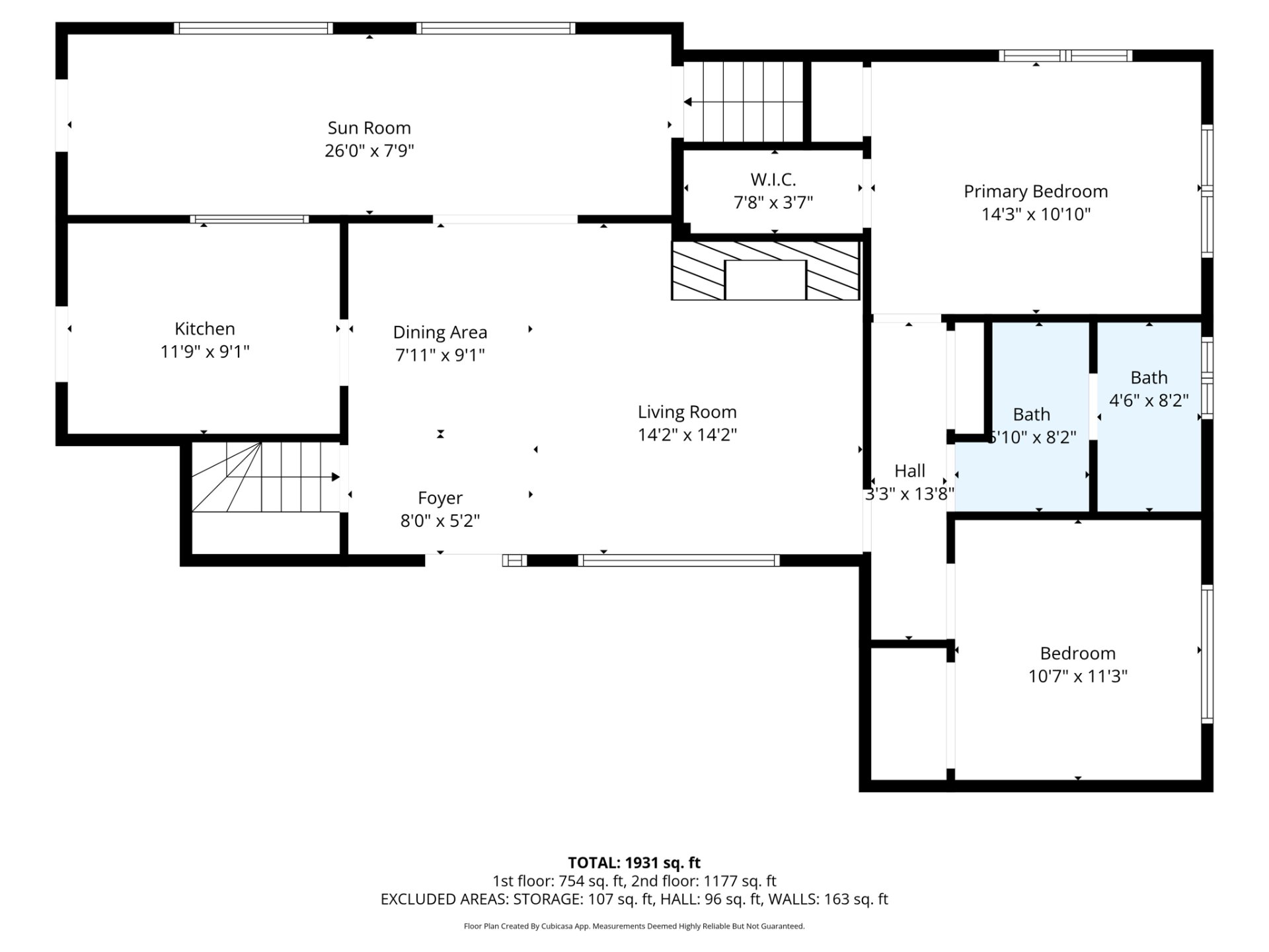
| Chambre | Dimensions | Niveau | Revêtement |
|---|---|---|---|
| Salon | 14.2 x 14.2 P | Rez-de-chaussée | Bois |
| Salon | 14.2 x 14.2 P | Rez-de-chaussée | Bois |
| Salle à manger | 7.11 x 9.1 P | Rez-de-chaussée | Bois |
| Salle à manger | 7.11 x 9.1 P | Rez-de-chaussée | Bois |
| Cuisine | 11.9 x 9.1 P | Rez-de-chaussée | Plancher flottant |
| Cuisine | 11.9 x 9.1 P | Rez-de-chaussée | Plancher flottant |
| Solarium | 26 x 7.9 P | Rez-de-chaussée | Linoléum |
| Solarium | 26 x 7.9 P | Rez-de-chaussée | Linoléum |
| Chambre à coucher principale | 14.3 x 10.10 P | Rez-de-chaussée | Bois |
| Chambre à coucher principale | 14.3 x 10.10 P | Rez-de-chaussée | Bois |
| Penderie (Walk-in) | 7.8 x 3.7 P | Rez-de-chaussée | Bois |
| Penderie (Walk-in) | 7.8 x 3.7 P | Rez-de-chaussée | Bois |
| Salle de bains | 5.10 x 8.2 P | Rez-de-chaussée | Bois |
| Salle de bains | 5.10 x 8.2 P | Rez-de-chaussée | Bois |
| Salle de bains | 4.6 x 8.2 P | Rez-de-chaussée | Céramique |
| Salle de bains | 4.6 x 8.2 P | Rez-de-chaussée | Céramique |
| Chambre à coucher | 10.7 x 11.3 P | Rez-de-chaussée | Bois |
| Chambre à coucher | 10.7 x 11.3 P | Rez-de-chaussée | Bois |
| Salle familiale | 21.11 x 14.0 P | Sous-sol | Linoléum |
| Salle familiale | 21.11 x 14.0 P | Sous-sol | Linoléum |
| Chambre à coucher | 9.0 x 10.10 P | Sous-sol | Plancher flottant |
| Chambre à coucher | 9.0 x 10.10 P | Sous-sol | Plancher flottant |
| Salle de bains | 6.6 x 4.8 P | Sous-sol | Linoléum |
| Salle de bains | 6.6 x 4.8 P | Sous-sol | Linoléum |
| Salle de lavage | 6.6 x 6.11 P | Sous-sol | Céramique |
| Salle de lavage | 6.6 x 6.11 P | Sous-sol | Céramique |
| Rangement | 14.2 x 7.6 P | Sous-sol | Béton |
| Rangement | 14.2 x 7.6 P | Sous-sol | Béton |
| Rangement | 5.0 x 8.11 P | Sous-sol | Béton |
| Rangement | 5.0 x 8.11 P | Sous-sol | Béton |
| Sous-sol | 6 pieds et plus, Totalement aménagé |
|---|---|
| Fenêtres | Aluminium, PVC |
| Allée | Asphalte |
| Proximité | Autoroute/Voie rapide, Cegep, École primaire, École secondaire, Garderie/CPE, Golf, Hôpital, Parc-espace vert |
| Fondation | Béton coulé |
| Toiture | Bitume et gravier |
| Revêtements | Brique, Pierre, Vinyle |
| Aménagement du terrain | Clôturé, Paysager |
| Type de fenêtre | Coulissante, Manivelle |
| Énergie pour le chauffage | Électricité |
| Topographie | En pente, Plat |
| Stationnement | Extérieur |
| Foyers-poêles | Foyer au bois, Poêle à bois |
| Système d'égouts | Municipal |
| Approvisionnement en eau | Municipalité |
| Mode de chauffage | Plinthes électriques |
| Zonage | Résidentiel |